Prodej novostavby rodinného domu 4+kk se dvěma parkovacími stáními a zahradou















Cena
8 050 000
KčNabízíme k prodeji moderní novostavbu rodinného domu 4+kk v Příložanech u Jaroměřic nad Rokytnou, která je součástí kvalitního developerského projektu Nové Příložany. Tento zděný dvoupatrový dům s prostornou zahradou, terasou a dvěma parkovacími stáními je navržen s důrazem na prostornost, energetickou úspornost a maximální komfort bydlení. Pozemek se nachází v klidné lokalitě s perfektním spojením do Jaroměřic nad Rokytnou, Třebíče i Dukovan, což z něj činí ideální volbu pro rodiny hledající komfortní prostorné bydlení.
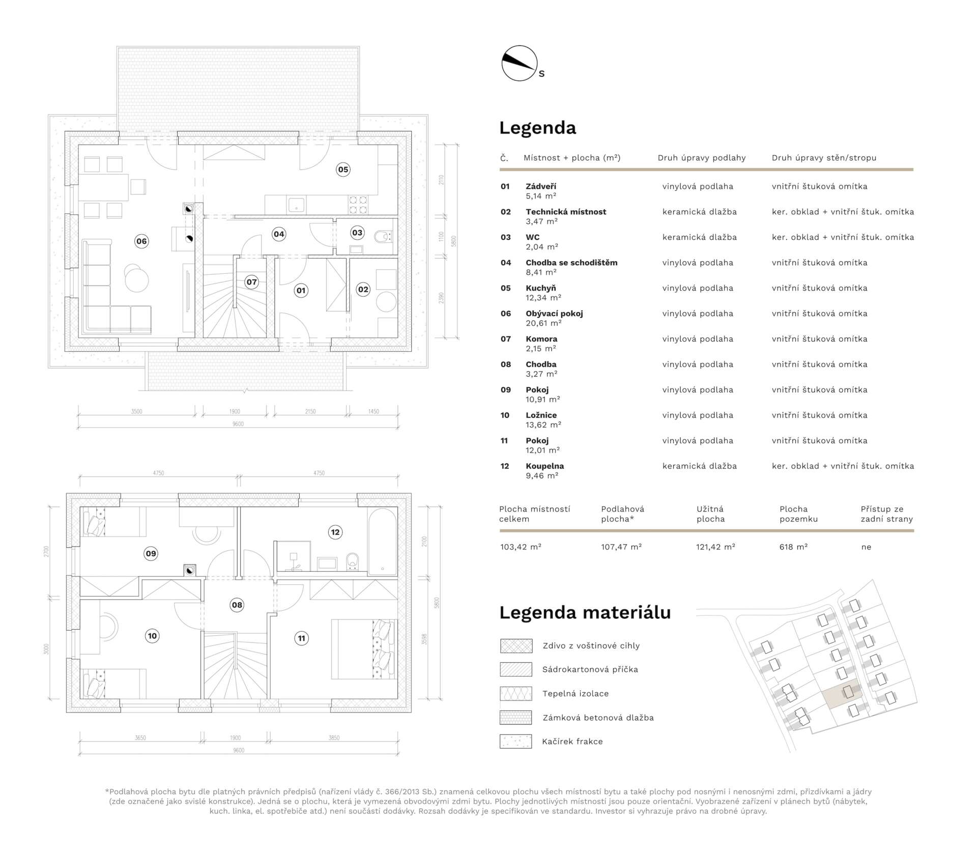
Novostavba o celkové užitné ploše 121,5 m² nabízí tři ložnice, koupelnu, prostornou kuchyň, obývací pokoj a praktickou technickou místnost vč. toalety v přízemí. Dům bude vybaven moderním tepelným čerpadlem s teplovodním podlahovým topením vzduch-voda, které zajistí minimální provozní náklady. Ohřev teplé užitkové vody bude rovněž zajištěn prostřednictvím tepelného čerpadla. Součástí je také parkování před domem pro dvě osobní auta a prostorná terasa přístupná z obývacího pokoje.
Pozemek se nachází v obci Příložany, která nabízí klidné bydlení v přírodě s výbornou dostupností všech potřebných služeb. Příložany leží v bezprostřední blízkosti Jaroměřic nad Rokytnou (pouhé 3 minuty jízdy autem), kde je k dispozici kompletní občanská vybavenost.
Lokalita se vyznačuje krásným přírodním prostředím, ideálním pro rodiny toužící po klidném venkovském životě bez kompromisů v dostupnosti. V okolí se nachází Třebíč, jedno z nejvýznamnějších měst regionu s bohatou historií a kompletní infrastrukturou, a nedaleké Dukovany.
Stavbu je možné uzpůsobit prostřednictvím klientských změn k Vaší maximální spokojenosti.
Chcete se o nemovitosti dozvědět více? Neváhejte nás kontaktovat pro domluvení osobní prohlídky či návštěvu showroomu.
Realitní agentura a majitelé si vyhrazují právo vybrat si zájemce dle vlastních kritérií.
Vlastnosti
Cena
8 050 000
KčMěsíční náklady
KčProvize
KčKauce
KčVýměra
m²Typ pozemku
Dispozice
4+kk
Podlahová plocha
107,47
m²Užitná plocha
121,5
m²Zahrada
m²Plocha pozemku
618
m²Podlaží
Počet pater
2
Stav
Novostavba
PENB třída
A – mimořádně úsporná
Lokalita
Příložany, Jaroměřice nad Rokytnou
Vybavení
Zahrada
Terasa
Balkon
Parkovací stání pro dvě osobní auta
Podlahové topení
Tepelné čerpadlo
Koupelna vč. sanitárního vybavení
Oplocení
Plastová okna
Hliníkové vstupní dveře
Interiérové dveře
Podlahy (vinyl, dlažba)

Fotogalerie
Lokalita
Příložany, Jaroměřice nad Rokytnou
Projekt rodinného domu se nachází v obci Příložany, která nabízí klidné bydlení v přírodě s výbornou dostupností všech potřebných služeb. Příložany leží v bezprostřední blízkosti Jaroměřic nad Rokytnou (pouhé 3 minuty jízdy autem), kde je k dispozici kompletní občanská vybavenost.
Lokalita se vyznačuje krásným přírodním prostředím, ideálním pro rodiny toužící po klidném venkovském životě bez kompromisů v dostupnosti. V okolí se nachází Třebíč, jedno z nejvýznamnějších měst regionu s bohatou historií a kompletní infrastrukturou, a nedaleké Dukovany.
Výhodná poloha rodinného domu umožňuje snadné spojení s Brnem, což z Příložan činí atraktivní volbu i pro ty, kteří dojíždějí za prací do krajského města, ale touží po klidném domově obklopeném přírodou.
Chcete se na něco zeptat? Jsem tu pro Vás!
Chcete se na něco zeptat? Jsem tu pro Vás!
Není to to pravé ořechové? Jsme profíci na Příložany, Jaroměřice nad Rokytnou a okolí
Společně najdeme v obci Příložany, Jaroměřice nad Rokytnou přesně to, co hledáte! Jak?
Zjistěte více o poptávkách
O realitní kanceláři
Jsme realitní agentura (realitní kancelář) R 21, s.r.o. Děláme špičkový realitní marketing, pomocí kterého prodáváme nemovitosti v Brně, Tišnově, Kuřimi a vůbec na jižní Moravě a Vysočině. Standardem jsou pro nás luxusní videoprohlídky, drony, virtuální realita a webové stránky pro danou nemovitost.
Máme certifikaci od Ministerstva pro místní rozvoj v oboru Obchodník s realitami, pravidelně spolupracujeme s Asociací realitních kanceláří České republiky, pro kterou mimo jiné přednášíme. Mimo to organizujeme celou řadu vlastních vzdělávacích akcí a seminářů na témata jako prodej nemovitostí, investování do nemovitostí a daňová a právní problematika investování do nemovitostí.
Jsme naprostou špičkou na trhu v oblasti realitního marketingu v České republice, o čemž se můžete přesvědčit například v rámci našich zrealizovaných zakázek a videoreferencí od našich spokojených klientů. Díky tomu pronajímáme a prodáváme nemovitosti za výrazně vyšší cenu, než naše konkurence a samoprodejci.













